Kako urediti stan od 45 m2?

Ovoga mjeseca je dizajnerski studio Domenico Leonardi pomogao našim čitateljima Ivani i Stipi da urede stan za mladi bračni par.
Vidi originalni članak

Pitanje čitatelja

Poštovani,
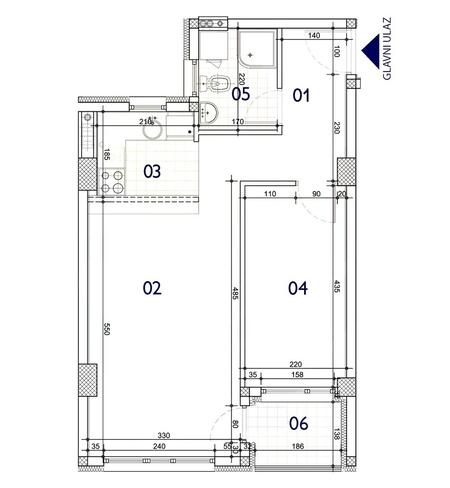
moram Vas pohvaliti s obzirom da me Vaše ideje oduševljavaju, posebno u uređenju malog prostora. Javljam se u nadi da će možda i moj stan postati prekrasan zahvaljujući Vašem znanju i idejama. Potreban mi je predlog za uređenje malog stana od 45 m2 za mladi bračni par... Stoga šaljem tlocrt stana, koji je potpuno prazan, ali je predviđeno mesto za neke elemente.
Ivana i Stipe

Domenico Leonardi odgovara

Prostor  kuhinje, blagovaonice i dnevnog boravka dugačak je i uzak pa je i smještaj pojedine zone već prilično određen.

Ipak, rješenje je nešto posebnije zbog položaja stola za blagovanje u dnu prostorije ispred prozora, dakle, nešto dalje od kuhinje. Razlog tomu je mogućnost postavljanja nešto većeg stola te ujedno oslobađanje prolaza prema dnevnom boravku.

Kako bi zona dnevnog boravka, smještena u centru, ipak dobila malu dozu privatnosti, odvojili smo ju od kuhinje i blagovaonice staklenim stijenama. Ideja za uređenje bila je postići topao, ugodan prostor stoga smo se, prilikom odabira namještaja i zidnih boja i obloga, odlučili za nijanse smeđe boje te dekor drva.

Kako prostor ne bi djelovao pretamno korištene su i svjetlije nijanse (pod, zid iza sofe, zavjese, police oko televizora, kuhinjski zid), a kao akcent u prostoru dobili smo smještajem crvenog naslonjača Arnea Jacobsena ('Egg chair').

Zid iza sofe obojen je dekorativnom bojom, a nasuprot njega je zid obložen pločama koje su obučene u tkaninu što još više naglašava toplinu koju smo željeli postići. Igra spuštenih stropova i ugradbene rasvjete slijedi dinamiku i razigranost cijelog prostora, a sofa Chesterfield daje mu profinjenost i eleganciju.

Ako i vi imate problem prilikom uređenja interijera pošaljite svoje pitanje zajedno s tlocrtom i dimenzijama stropa na info@budi.in i možda upravo vama dizajnerski studio Domenico Leonardi pomogne u stvaranju idejnog rješenja.

Više slika pogledajte u galeriji...

Posjeti Miss7.24sata.hr